公司新聞

COMPANY NEWS

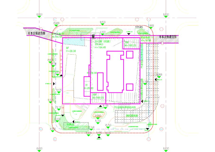
好太太國際中心節能評審意見

創(chuàng)建時間(jiān):2025-11-28 10:53:38

項目名稱:好太太國際中心節能評審意見;
委托單位:天河區發改局;
項目地點:廣州市天河區車陂街道金融城東區At091430地塊;
項目投資:280000萬元;
服務類型:節能評估;
項目概況:建設規模:本項目規劃總用地面積爲6745平方米,地上總建築面積爲84040.99平方米 ,其中總計容面積爲81614.83平方米;地下總建築面積爲23298.12平方米 。項目主要建設寫字樓、商業和地下車庫,其中地下共4層,地上部分共39層,總高度爲176米 。地下1層至地下4層爲地下車庫區域,地上1層至3層主要爲商業、餐飲和辦公,地上4層至39層主要爲辦公。