公司新聞

COMPANY NEWS

饒平縣華僑中學校舍改擴建工程可行性研究報告

創(chuàng)建時間(jiān):2026-01-09 18:31:10

項目名稱:饒平縣華僑中學校舍改擴建工程可行性研究報告;
委托單位:饒平縣華僑中學;
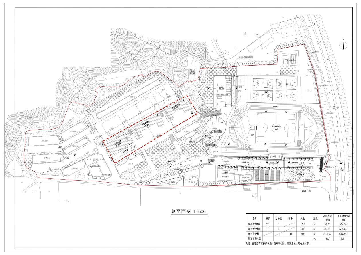
項目地點:饒平華僑中學校内;
項目投資:6402.03萬元;
服務類别:工程咨詢;
項目概況:我司受饒平縣華僑中學編制饒平縣華僑中學校舍改擴建工程可行性研究報告,項目位於潮州市饒平縣黃岡鎮。本項目拆除原有主樓、泰國樓、香港樓、衛生間,拟新建1棟教學樓A,建築面積3234.55㎡;1棟教學樓B,建築面積2748.55㎡;1棟宿舍樓(含學生宿舍、食堂),建築面積4359.05㎡;另建設地下消防水池及水泵房420㎡。項目估算總投資6402.03萬元,其中工程費4160.48萬元。